



































































































































































































































<






















































































































































The beginning: buying a house in the village of Vori in the southeast of the island of Crete








Buying a house in Crete had been a dream for me for a long time and also for my best friend Wilbert, so I spent many hours on the internet searching for an affordable home that would appeal to us both. Our preference was for the south of Crete and if possible in the southeast, because it is the quietest there and most of our favorite beaches are in that area. It is also the part of the island that has the best papers for the amount of sunshine and the temperature.
When I saw this house on the internet in a very small and quiet village, which I knew from an earlier visit, I wrote to the real estate agent on 27 July 2018 and said that I wanted to make an offer without having seen the property. I also contacted a friendly broker in Sissi, Suzanne Schils from Nikou Real Estate to ask if she could have a look at it for me and be helpful with the purchase and with advice.
I had known Suzanne via the Internet for a while and since she also speaks Dutch it was extra easy for me. Suzanne went to have look at the house for us and made a lot of pictures and forwarded a map of the plot.
Below are two pictures of me at the Nikou Real Estate Agency in the village of Sissi and the property as it was advertised on the internet.








The first thing we had to do, according to Suzanne, was to take a good lawyer who would check things out for us and who could represent us at the real estate agent and the sellers of the house. She brought us into contact with Eleftheria Chatzipanagioti, a lawyer in Agios Nikolaos, and on the 5th of August we hired her. That turned out to be a good choice because she was quick to respond to questions and excellent in her job as she all the time informed us about every little thing that was going on. You may think that it goes simple and smoothly if you buy a house, but nothing is less true. Since 2013 the Greek government has required all houses to be legalized before they are sold. Most old houses (about 90% I was told) is not legalised yet. And everything takes time, lots of time.
But on 5 August the lawyer immediately started working for us. She also explained the procedure extensively and had to write and send us a document to give her a power of attorney. I had to go to a civil-law notary with that document here in the Netherlands. She needed our addresses here, a copy of our passports and the names of our parents. For the latter we both had to request a birth certificate in the municipality where we were born and that took a little bit of time. The next day, on August 6, she had already contacted the real estate agent of the vendors and they would send her the details of the property so she could start her "legal search". She received those details the next day from the real estate agent and she started the investigation. This means that she went to find out who the building belonged to and if there were not multiple owners (that happens quite often in Greece) or debts on the house.
Two days later, on the 9th of August I received the "legal search" report. The house turned out to belong to an English couple. That also explained why there was a satelite dish on the roof, because most Greeks do not have that. Later we found out that this couple had returned to England five years ago for health reasons, with the intention to return to Crete again, but this never happened. After a few years they decided to put the house on sale. The house was built before 1923 and it had to be legalized in the way it was decided in the law of the Greek government 0f 2013 (this is also because there are many buildings put down without permission in Greece).
Eleftheria Chatzipanagioti
Lawyer
32, Nikolaou Plastira str
72100 Agios Nikolaos
Crete
Greece
Tel. 0030-6976865257 - Send an e-mail to Eleftheria Chatzipanagioti.
Eleftheria's office is situated in the street behind Voulismeni Lake in the center of Agios Nikolaos, and it is easy to find. I recommend her because she is fabulous: quick with responding to e-mails, keeps you posted about everything that is going on, serious but with a good sense of humour.








We had to send all kinds of documents so that Eleftheria could open a bank account in our name, ask for a Greek tax number, and also in the end put a signature on the final purchase contract on our behalf. We needed a birth certificate, an energy bill, a tax declaration, a payslip, a telephone bill, a copy of the passport and a notarial authorization with an apostille (special stamp) from the court. On August 9, Eleftheria also received both birth certificates and she could make the power of attorney with which we had to go to the notary. She also went to call the real estate agent to ask for the amount of the deposit that the vendors wanted. Part of that deposit was also needed to pay the civil engineer (an architect who comes to measure up the rooms and put things into the system etc.) in order to legalize the building and the plot.
Subsequently a so-called pre-contract had to be set up. This could be done through a notary, but that would take an extra long time, or it could simply be a contract between the sellers and the buyers. A contract between only the vendors and us was not binding and that would mean that the vendors could eventually decide not to sell the house, but because this was the quicker option we chose this. At the end of September (so one month and three weeks after August 9) we would go to Crete for two weeks and the real estate agent of the seller had told us that it might all be ready before that time.
On the 13 August after we had been to the notary in Amsterdam for a signature on the papers that Eleftheria had sent us, I thought the document was ready to be sent to the law firm in Agios Nikolaos, so I made a scan of it to show Eleftheria. But it was not yet okay, because I had to take the document to the court in Amsterdam where the signature of the notary would then be checked again. They had to put another stamp on it to finalize it. That is called the apostille. In the meantime, the sellers in England were also busy arranging a power of attorney for their lawyer in Crete. That took longer because they had to get this final stamp at the Greek consulate there.








After that came the long period of waiting. At the end of September we flew to Crete for two weeks and we had the hope that everything would be ready before that and we would get the keys, but the legalization of the building was not completed by then. We did make an appointment with the selling agent to come and see the house. The day before we had that appointment we were too curious, drove to the village and we could already see the outside and part of the house. The next day we had the appointment with the real estate agent and she came with a bunch of 7 keys to open all doors. A number of curious villagers immediately came to the event. The atmosphere was very nice and the people were very friendly and enthusiastic that the house, which had been empty for so long, was finally sold.
Fortunately we were both lyrical about the property we had bought. The two gardens in the front were indeed overgrown and the flowers and plants were more than two meters high, but that is a matter of pruning. There was also a beautiful large orange tree. The neighbor of the building had watered the plants and this tree for five years while the building was empty. It also turned out to be two separate houses and not one. There was a small house with a bedroom, a room with a kitchenette and a large closet, and a bathroom with shower and toilet, and there was a larger house with a living room / kitchen / dining area, a utility room, an office, a bedroom and a bathroom with shower and toilet. There were also a number of outbuildings / storage rooms. In one of them there was also a connection for water, so there was the possibility to build a bathroom here in the future and to make it a separate studio for any visitors.
The best of the whole we both found the shared long veranda at the back of the two houses, which looked out on the valley and the mountains in the distance. That veranda was enclosed and completely private. There were no houses at all in front of it, so a free view. We discovered an almond tree and a walnut tree. A part of the porch was no longer accessible because part of it had been blocked for now by unknown trees. A nice detail was also the old-fashioned oven outside in which you could bake bread. The small house also had a beautiful old fireplace. Here were also two fridges, three heaters (one electric and two on gas), a fan, a hot plate, a double bed and there was a small old television. Both the small and the larger house were air-conditioned. In the big house there were four fridges, a freezer, a washing machine and a dryer, a kitchen with all kinds of equipment, a big TV, pots and pans and all kinds of crockery.








Later that week we came back again and to meet with two friends of us from Amsterdam, Eddy and Louisa. I had received the keys for a while from the real estate agent to show it to them. They also liked it very much. Then we continued our holiday and left again to the next villages where we had booked overnight stays. Unfortunately we did not hear from the real estate agent or our lawyer for the rest of the holiday, so the legalization was still not passed when we flew back to the Netherlands.
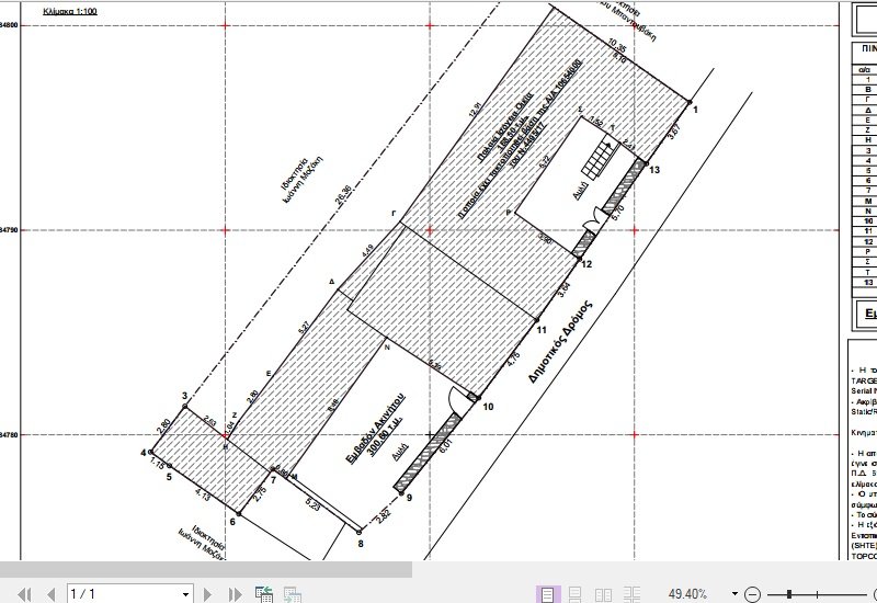
At the end of October early November we had planned another trip to Crete, so now we were hoping that by that time everything would be arranged. But unfortunately that was not the case. We did go to have another look at the house and picked some oranges, but that was it. Only on the 13th of November, about ten days after we were back in the Netherlands, I received an e-mail from my lawyer that she had received the documents of the topography of the plot of the building from the civil engineer. I had already been told that they would have to be sent to a civil-law notary in Greece, who would then take it further. It was nice to have the map and to view it. I found out that there was still a space of 15 m2 that we had not seen and that the veranda was more than 26 meters long.








On January 9th I was informed that the contract was now at the notary's office and that she was working on it. The end was in sight and soon it would be signed. But a few days later we were disappointed again because one of the sellers from England bumped into a problem with the Greek tax authorities because he was mentioned as being Greek but was not. New documents had to be arranged again and there was another apostille (special stamp, I think through the Greek consulate in England or the court there) that had to be applied for. Those documents then had to be sent back to their lawyer in Crete. Arranging the papers would take about three weeks according to the e-mail.
In the meanwhile my best friend, with whom I would buy the house together, for all kinds of reasons refrained from the purchase. My lawyer and we have become quite frustrated by now. I have now given the order not to sign anything. I will first take another look and then I will maybe buy the house on my own. April 12th we fly back and then we will see how to carry on with the purchase. On 27 March I get another message from my lawyer that the required papers that were estimated to arrive in Crete in mid-March were still in England and that an apostille still had to be put on them. After that it had to be sent to Crete. The chance that I can sign the contract during my vacation of the 12th of April is therefore very small according to her.
And then we had our short holiday in Crete. Friday the 12th of May we first flew to Athens where we spent the night on the coast before we would fly on to Heraklion on Crete the next day. The following Monday we had an appointment with the real estate agent who would hand over the keys. On Tuesday we had an appointment with our lawyer Eleftheria in Agios Nikolaos an hour and a half drive from us. We both liked her very much. However a new power of attorney had to be made at a notary because I would now buy the house alone. Incidentally, the original power of attorney that had been made in the Netherlands at the Dutch notary's office, had been changed by that notary in such a way that he was only approved on Crete with pain and effort. An appointment was made with the notary on the Thursday and the lawyer would be there as well.
At five o'clock on Tuesday we had a second appointment with the real estate agent and a contractor to walk through the building to see what had to be done. When we were on the roof, we were shocked. There were quite a few cracks in it, cracks between the tiles and the chimney stood loose. Coming down we saw much more plastering that had come loose and the doors were all rotten. When the contractor lifted a piece of laminate, we saw a wet concrete floor underneath. In addition, all the refrigerators had started to rust, and almost all of the household goods could go to the garbage. I had more and more reservations about the rising costs and future maintenance, especially now that I was on my own. My friend also lost his enthusiasm.
When I woke up on Thursday morning I decided, after a few nights of worrying, to put an end to it. We would lose the deposit of 6,000 euros, but I didn't have to worry about the house anymore. I decided to go and see some apartments in the complex where we always stay and where I always feel happy. The manager of the complex would give me some keys in the afternoon so I could go and have a look. We first went to Agios Nikolaos for our appointment with the notary (and the lawyer). Finally she had all the papers from the sellers in order (after almost NINE months!), but I had told her not to sign anything yet. The lawyer had to pass on the bad news to the lawyer of the sellers and after that a new power of attorney was set up in which she was also given the authority to arrange the Greek taxes through an accountant in the future. It had to be translated so we would understand what it said. The costs were 100 euros.
Because the sale was cancelled (but a lot of work had been done by her), the lawyer was so lenient to ask for only half of her fee (still 496 euros). After getting back to our holiday home, I sent the real estate agent an e-mail that we cancelled the purchase and told her that I would leave the keys in the house in Vori (that was also agreed upon and the broker's office was already closed at 1 pm so I could not deliver them there).








That afternoon I looked at two penthouses that were for sale in the resort where we regularly stay. It seemed to me and everyone around me more sensible to purchase something smaller that needed less maintenance. Moreover, I would be only a short walk away from one of my favourite beaches and there are two large swimming pools at the complex. I understood that the service costs were 120 euros per month, but you also had the option to rent out your apartment if you were not there yourself.
In both penthouses that we viewed they were busy with the maintenance and they were therefore not cleaned up and dressed up, but you did get an idea. All the furniture that would normally be on the balconies was now inside, and the large amount of pillows that are normally used to decorate the roof terrace were now on the bed in the master bedroom. Still I was positive about it. They both had two bedrooms: a double and a bedroom with a bunk bed. The living room / kitchen was not very large but it looked okay and it was modern. Everything you needed was there (furniture, kitchen utensils, a dish washer, tv). The bathroom with shower and toilet looked great in both penthouses. Each penthouse had a spacious balcony at the front overlooking the sea and at the back a balcony with morning sun that overlooked the car park. Through the common staircase (which is shared with one other penthouse) you reach the large roof terrace with a beautiful view.








Below I have put some pictures of what (similar) penthouses look like when they are ready. In the meantime I am still waiting for the price because I have not received it yet. May 18th we go that way again and look further. Perhaps there are other apartments that we can view if it should turn out to be too expensive.







